Räume

Die Geschichte der Location ist ungewöhnlich:
Ursprünglich wurde die Akademiebühne im Jahr 1954 als Kino und Theater für die französischen Streitkräfte erbaut, später erweitert und zu einer Kirche umgewidmet!

Seit 2008 ist sie das Herzstück der EurAka Baden- Baden und dient unter anderem als Ausbildungsstätte für Theater- und Veranstaltungsberufe.

Aufwändige Umbaumaßnahmen berücksichtigten in besonderem Maße den Erhalt der Kirchenatmosphäre:
Alte Kirchenbänke, das nostalgisch wirkende Foyer und die bunt verglasten Fenster machen die Akademiebühne zu einem Kleinod und dadurch zu einer besonderen Location.


Gartengeschoss

Im Gartengeschoss befinden sich folgende Räumlichkeiten:

  • 2. Haupteingang/Foyer mit Besuchergarderobe (144m2)
  • 2 Besucher WCs
  • Cateringküche
  • 2 Unterrichtsräume/Künstlergarderobe (je 65m2)
  • 2 WCs mit Dusche für Schüler und Künstler
  • Tonstudio mit Aufnahmeraum und Regieraum (je 25m2)
  • Lagerräume
  • Haustechnik Zentralen
  • Lastenaufzug zur Bühne

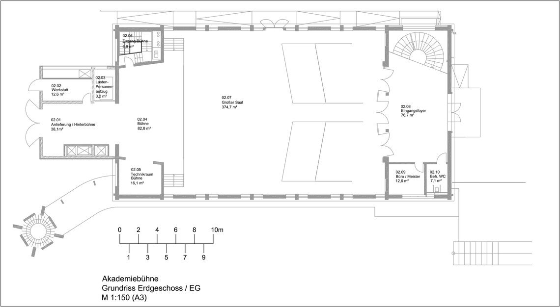
Erdgeschoss

Im Erdgeschoss befinden sich folgende Räumlichkeiten:

  • 1. Haupteingang/Foyer (76m2)
  • Zugang zum Saal
  • Großer Saal (ca. 380m2)
  • Bühne (82m2)
  • Lastenaufzug zum Gartengeschoss
  • Hinterbühne/Anlieferung (40m2)
  • Werkstatt
  • Ü-Wagen Standplatz
  • Behinderten WC

Obergeschoss

Im Obergeschoss befinden sich folgende Räumlichkeiten:

  • Besucherempore (50m2)
  • Foyer Empore (36m2)
  • Lagerraum